RU
другой город
Увійти
дизайн-студія інтер'єру

Дизайн фасадів

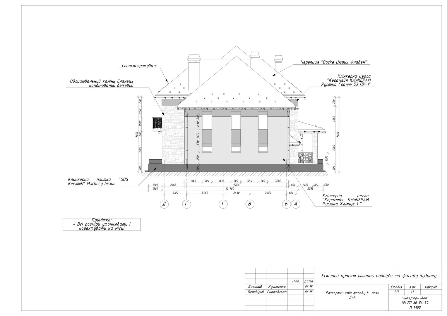
Візуалізація фасаду, креслення фасадів, підбір оздоблювальних матеріалів
Візуалізація фасаду, креслення фасадів, підбір оздоблювальних матеріалів
Опис
Ця послуга затребувана власниками котеджів, так як дуже часто в процесі розробки архітектурного проекту більше уваги приділяється планувальних рішень, рішень технічного характеру і загальному архітектурному стилю і формам.
 
 Власники комерційної нерухомості звертаються до нас тому, що ця послуга в нашому виконанні, як правило, більш детальна, ніж це роблять архітектори і більш комплексна, ніж її можуть запропонувати рекламщики.
 Їх спеціалізація - все ж безпосередньо вивіска, а не весь фасад, відповідно і використані матеріали обмежуються рекламними, і не включають будівельні і декоративні.
 
 Розробляючи дизайн фасадів будинків в м. Київ, Київська область, наші дизайнери, крім іншого, керуються такими принципами:
  • Єдність концепції дизайну фасаду та інтер'єру. Це стосується стилю, форм і використовуваних матеріалів
  • Якщо мова йде про дизайн фасаду з реконструкцією, то будь-які зміни фасаду співвідносяться зі змінами інтер'єру. Щоб досягти більш повного розуміння впливу екстер'єру на інтер'єр, розробляється план розташування меблів в кімнатах.
Відгуки
"Перед тим як розпочати будівництво будинку, замовив проект у однієї відомої компанії, але з часом зрозумів, що хочу оновити зовнішній вигляд будинку (фасад). Хотілося щось сучасне. Нажаль, звертався до двох компаній і жодна не змогла задовільнити мої побажання, надсилаючи примітивні варіанти. Лише після того як я звернувся до студії "Дизайн-студія Інтер'єр-Ідея", залишився повніст задоволеним, так як отримав бажаний результат. Найважче завдання, яке стояло перед дизайнерами даної компанії полягало в тому, що "коробка" будинку вже була збудована, і треба було задовільнити мої побажання, виходячи з того, що вже було. Приємно був вражений результатами відразу ж після першого надісланого мені варіанту. Попередня зустріч біля будинку не пройшла марно: зробивши усі необхідні заміри, та врахувавши усі побажання - я отримав від дизайнерів саме те, що і очікував. Під час опрацювання мого замовлення дизайнери компанії дійсно намагалися підібрати найкраще рішення, а не вислати чим по-швидше будь-який варіант. Окрему подяку хочу висловити дизайнеру Юлі, за професійний підхід до клієнта і за те що Ви чуєте і саме головне розімієте клієнта. Бажаю процвітання та росту Вашій компанії та колективу!!! Юля, МоЛоДеЦь! "
"Очень благодарна за профессиональный подход и человеческие качества Павлу и Ирине. В своем воображении нарисовала нестандартный дом (достаточно большая площадь первого этажа), но хотелось, чтобы внешне выглядел не большим и в стиле Шале.
Команда Интерьер-Идея справилась з заданием быстро и качественно, мне сразу понравился первый предложенный вариант екстерьера, дальше были детали и согласования.
Классно, когда получаешь то, про что мечтал.)))
Спасибо за работу и приятное общение!
Успехов вам! :)"
"Хорошая компания, приемлемая цена, приятно коммуницировать, хороший результат, короткие сроки, в удобном виде проект."
Супутні послуги